412, 9728 101 Avenue, Grande Prairie

2025-10-16
 

Quick Summary

Location
412, 9728 101 Avenue, Grande Prairie, Alberta T8V5B6
Price
$1,495 CAD
Status:
For lease
Property Type:
Office
Area:
690 sqft
Year of Construction:
1978
Video Link:

MLS®#A2264456

Property Description

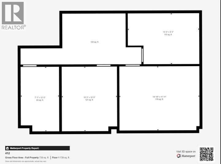
Immediate Possession Available – $1495/MONTH + GST (Utilities included) for a 690 sq ft professional office space in Aberdeen Centre, one of Grande Prairie’s most recognized commercial buildings. Perfectly positioned along Resources Road, a major arterial route through the City, this location ensures excellent visibility, easy access, and exceptional convenience for both clients and staff. This suite offers a bright, functional, and versatile layout. The space features a welcoming RECEPTION AREA AND FOUR PRIVATE OFFICES, making it an ideal fit for a variety of professional, administrative, or service-based businesses. The floor plan is thoughtfully designed to allow smooth flow between spaces while maintaining privacy for meetings, consultations, or focused work. Tenants enjoy access to two professionally maintained washrooms on the floor and the added benefit of shared access to a 4th floor boardroom (by appointment), perfect for presentations, team meetings, or collaborative sessions. The air-conditioned building is wheelchair accessible, equipped with elevator service, a main floor security booth, and offers paved parking directly adjacent for maximum convenience. The Aberdeen Centre offers a polished, professional setting designed to support productivity and create a welcoming experience for clients and staff alike. Its combination of visibility, accessibility, and amenities makes it an excellent choice for businesses seeking a premium commercial location. Known for its clean, professional environment and central location, Aberdeen Centre provides a strong foundation for growing or established businesses. . Contact your Commercial REALTOR® today to arrange a private tour. CLICK MULTIMEDIA FOR FULL 3D TOUR! Note: Square footage measurements used for lease purposes have been calculated according to actual measurements using BOMA Standards. 3D Tour measurements are not based on standardized calculations. (id:32467)

Property Features

Building

  • Cooling Type: Central air conditioning
  • Fireplace: No
  • Interior Size: 690 sqft
  • Building Type: Offices

Features

  • Feature: See remarks, Visual exposure

Land

  • Land Size: 5858.3 m2|1 - 1.99 acres

Ownership

  • Type: Freehold

Zoning

  • Description: CC

Information entered by Grassroots Realty Group Ltd.
Listing information last updated on: 2026-03-16 15:22:14


Book your free home evaluation with a 1% REALTOR® now!


How much could you save in commission selling with One Percent Realty?

Slide to select your home's price:

$500,000

Your One Percent Realty Commission savings

$500,000

Savings calculated using One Percent Realty's posted commission rates compared to another agent charging 7% on the first 100k & 3% on the balance + GST. Not all agents charge the same.

One Percent Realty's top FAQs

Q
What is the deal exactly, with One Percent Realty?

We are a fully licensed real estate company that offers full service but at a discount commission. In terms of services and exposure, we are identical to whoever you would like to compare us with. We are on MLS®, all the top internet real estates sites, we place a sign on your property ( if it's allowed ), we show the property, hold open houses, advertise it, handle all the negotiations, plus the conveyancing. There is nothing that you are not getting, except for a high commission!

Q
What do you charge?

We charge a total of $7,950 for residential properties under $400,000. For residential properties $400,000-$900,000 we charge $9,950. For residential properties over $900,000 we charge 1% of the sale price plus $950. Plus Applicable taxes, of course. We also offer the flexibility to offer more commission to the buyer's agent, if you want to. It is as simple as that! For commercial properties, farms, or development properties please contact a One Percent agent directly or fill out the market evaluation form on the bottom right of our website pages and a One Percent agent will get back to you to discuss the particulars.

Q
Are your listings on MLS® and realtor.ca?

Yes, and yes.


Learn more about the One Percent Realty Deal