113 Silverhorn Ridge, Rural Rocky View County

2025-10-16
 

Quick Summary

Location
113 Silverhorn Ridge, Rural Rocky View County, Alberta T3R0X3
Price
$654,900 CAD
Status:
For Sale
Property Type:
Vacant Land

MLS®#A2264296

Property Description

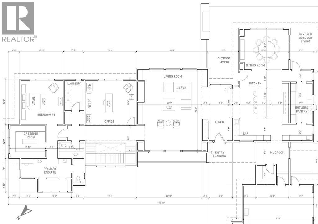
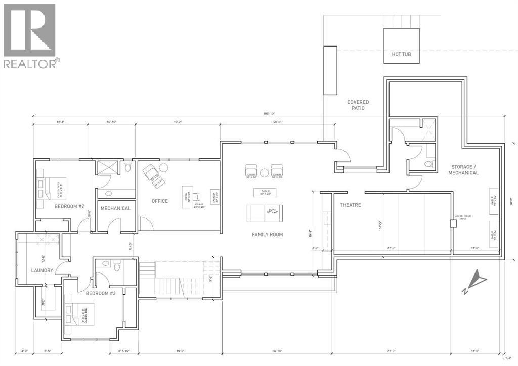
Experience the rare opportunity to own one of the most desirable properties in Silverhorn, an exclusive enclave in the heart of Bearspaw. This magnificent 2.12-acre estate lot—the largest in Phase 1—is perfectly positioned on a serene cul-de-sac surrounded by distinguished luxury residences, offering a remarkable setting for your dream home. Nestled into a wooded hillside overlooking a tranquil natural pond, this southeast-facing homesite is ideally suited for a walkout design, allowing you to fully embrace the peaceful beauty of its natural surroundings. The lot offers exceptional servicing, including water co-op, gas, power, electricity, Shaw high-speed fiber optic cable, and septic connection—all conveniently located at the lot line. Silverhorn’s architectural guidelines ensure enduring quality, refined aesthetics, and design integrity throughout the community, safeguarding your investment and maintaining the neighbourhood’s prestigious character. You also have the freedom to select your own builder, and *included* with *this* property are IBI Group–approved plans for a 3820 sq. ft. modern bungalow with a triple garage, and fully finished walk-out lower level with an additional 2800 square feet. The home has been meticulously and thoughtfully crafted and designed to harmonize with the land itself—its clean, contemporary architecture takes full advantage of the southeast orientation, expansive pond views, and the gentle contours of the wooded hillside. Every detail, from the window placement to the outdoor living spaces, has been thoughtfully crafted to celebrate the natural topography and serene setting, creating a home that feels both rooted in nature and refined in design. With a conservation-first vision, Silverhorn features over 50% open space, 7 kilometres of scenic walking trails, and ample privacy buffers between each property. Perfectly located just minutes west of Calgary, it offers a seamless balance between peaceful country living and urban convenience .Embrace the lifestyle you’ve been waiting for—a sanctuary of space, serenity, and sophistication in Silverhorn, Bearspaw’s premier estate community.Embrace the lifestyle you’ve been waiting for—a sanctuary of space, serenity, and sophistication in Silverhorn, Bearspaw’s premier estate community. (id:32467)

Property Features

Building

  • Fireplace: No

Land

  • Land Size: 2.12 ac|2 - 4.99 acres

Ownership

  • Type: Freehold

Zoning

  • Description: R-CRD p0.4

Information entered by RE/MAX Real Estate (Mountain View)
Listing information last updated on: 2026-03-16 13:47:59


Book your free home evaluation with a 1% REALTOR® now!


How much could you save in commission selling with One Percent Realty?

Slide to select your home's price:

$500,000

Your One Percent Realty Commission savings

$500,000

Savings calculated using One Percent Realty's posted commission rates compared to another agent charging 7% on the first 100k & 3% on the balance + GST. Not all agents charge the same.

One Percent Realty's top FAQs

Q
What is the deal exactly, with One Percent Realty?

We are a fully licensed real estate company that offers full service but at a discount commission. In terms of services and exposure, we are identical to whoever you would like to compare us with. We are on MLS®, all the top internet real estates sites, we place a sign on your property ( if it's allowed ), we show the property, hold open houses, advertise it, handle all the negotiations, plus the conveyancing. There is nothing that you are not getting, except for a high commission!

Q
What do you charge?

We charge a total of $7,950 for residential properties under $400,000. For residential properties $400,000-$900,000 we charge $9,950. For residential properties over $900,000 we charge 1% of the sale price plus $950. Plus Applicable taxes, of course. We also offer the flexibility to offer more commission to the buyer's agent, if you want to. It is as simple as that! For commercial properties, farms, or development properties please contact a One Percent agent directly or fill out the market evaluation form on the bottom right of our website pages and a One Percent agent will get back to you to discuss the particulars.

Q
Are your listings on MLS® and realtor.ca?

Yes, and yes.


Learn more about the One Percent Realty Deal