64166 434 Avenue W, Rural Foothills County

2025-10-15
 

Quick Summary

Location
64166 434 Avenue W, Rural Foothills County, Alberta T1S1A6
Price
$2,499,900 CAD
Status:
For Sale
Property Type:
Single Family
Area:
1264 sqft
Bedrooms:
2 bed +1
Bathrooms:
3
Year of Construction:
1980
Video Link:
Open House:
18/10/2025 12:00:00 PM to
18/10/2025 03:00:00 PM

MLS®#A2264476

Property Description

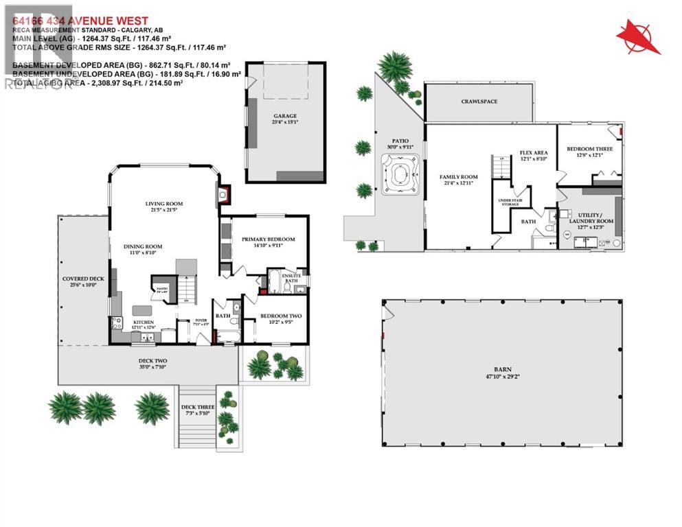
152 Acres of Peaceful Prairie Living, just 9 km from Okotoks! Looking for space, views, and room to breathe? This 152-acre grassland parcel has it all! Rolling hills, mature trees, and a cozy walk-out bungalow that feels like home the moment you walk in. Set just southwest of Okotoks on 434 Ave (west of 64 St), this property blends country quiet with easy access to town. This walkout bungalow offers over 2,000 sq/ft of developed living space, featuring an open-concept layout, a mix of hardwood and vinyl plank floors, and a comfortable main-floor primary suite with a 4-piece ensuite. The kitchen is open and bright with an island and quality appliances, perfect for casual dinners or morning coffee with a view. Many of the windows and doors have been replaced, along with new decking, fresh exterior paint, fresh interior paint and new water softener system installed. Step outside to enjoy the wrap-around deck that catches the morning sun on the east side and offers a covered, south-facing spot to relax or entertain. The lower level of this home has been completely renovated, and it speaks for itself and sports a large family room, full bath (completely re designed to be more spacious), laundry room, and a bedroom. The land itself gently slopes to the South, offering beautiful mountain views, excellent drainage, a spring-fed seasonal creek, and a lovely mix of open space and mature trees. There’s a single detached garage with a new roof, windows, and freshly painted siding, a 48’x29’ Barn complete with all new Tin siding and roofing, wood rail fencing, installation of 2 new auto stock waters, turn out pens, and a turn-around driveway. Whether you’re dreaming of a hobby ranch, a private retreat, or just a peaceful place to put down roots — this one’s worth a look. You’ll love the quiet, the views, and the easygoing country lifestyle that comes with it. (id:32467)

Property Features

Building

  • Appliances: Washer, Water softener, Dishwasher, Stove, Dryer, Microwave, Microwave Range Hood Combo, Window Coverings
  • Architectural Style: Bungalow
  • Basement Development: Finished
  • Basement Features: Walk out
  • Basement Type: Full (Finished)
  • Construction Style: Detached
  • Cooling Type: None
  • Exterior Finish: Stucco
  • Fireplace: Yes
  • Flooring Type: Hardwood, Vinyl Plank
  • Interior Size: 1264 sqft
  • Building Type: House
  • Stories: 1
  • Utility Water: Well

Features

  • Feature: See remarks

Land

  • Land Size: 152.53 ac|80 - 160 acres
  • Sewer: Septic Field, Septic tank

Ownership

  • Type: Freehold

Structure

  • Structure: Barn, Deck, See Remarks

Zoning

  • Description: AG

Information entered by Century 21 Foothills Real Estate
Listing information last updated on: 2025-10-15 13:48:59


Book your free home evaluation with a 1% REALTOR® now!


How much could you save in commission selling with One Percent Realty?

Slide to select your home's price:

$500,000

Your One Percent Realty Commission savings

$500,000

Savings calculated using One Percent Realty's posted commission rates compared to another agent charging 7% on the first 100k & 3% on the balance + GST. Not all agents charge the same.

One Percent Realty's top FAQs

Q
What is the deal exactly, with One Percent Realty?

We are a fully licensed real estate company that offers full service but at a discount commission. In terms of services and exposure, we are identical to whoever you would like to compare us with. We are on MLS®, all the top internet real estates sites, we place a sign on your property ( if it's allowed ), we show the property, hold open houses, advertise it, handle all the negotiations, plus the conveyancing. There is nothing that you are not getting, except for a high commission!

Q
What do you charge?

We charge a total of $7,950 for residential properties under $400,000. For residential properties $400,000-$900,000 we charge $9,950. For residential properties over $900,000 we charge 1% of the sale price plus $950. Plus Applicable taxes, of course. We also offer the flexibility to offer more commission to the buyer's agent, if you want to. It is as simple as that! For commercial properties, farms, or development properties please contact a One Percent agent directly or fill out the market evaluation form on the bottom right of our website pages and a One Percent agent will get back to you to discuss the particulars.

Q
Are your listings on MLS® and realtor.ca?

Yes, and yes.


Learn more about the One Percent Realty Deal