738 8 Street SE, Medicine Hat

2025-10-10
 

Quick Summary

Location
738 8 Street SE, Medicine Hat, Alberta T1A1M5
Price
$174,900 CAD
Status:
For Sale
Property Type:
Single Family
Area:
871 sqft
Bedrooms:
2
Bathrooms:
1
Year of Construction:
1942

MLS®#A2263150

Property Description

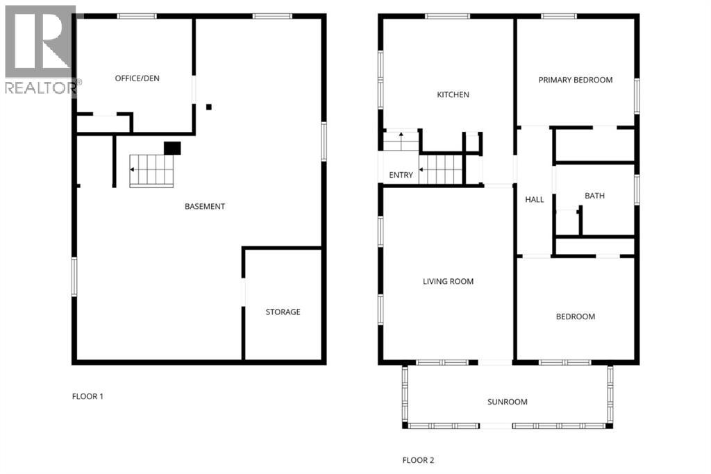
This centrally located South Flats bungalow offers both character and potential. The main floor features two bedrooms, a full bathroom, and beautiful original hardwood floors throughout that have been refinished. A bright front sunroom porch, an additional 120 sq ft, provides a relaxing spot to enjoy natural light. The basement includes a den/office, cold storage, and laundry, offering versatile space to suit your needs. Outside, a 20’ x 12’ detached garage with power is perfect for projects, storage, or hobbies. There is a paved parking pad beside the garage. The home has some updated vinyl windows, updated electrical, and the yard is fully fenced with potential for RV parking. The lot is 6500 sq ft making it large enough to build a much larger garage. There is a garden space and plenty of room for big ideas! A great choice for first-time buyers looking for a functional home or investors seeking opportunity, this property is just minutes from downtown Medicine Hat, local parks, and amenities. Contact a real estate agent today to explore this South Flats bungalow! (id:32467)

Property Features

Ammenities Near By

  • Ammenities Near By: Park, Shopping

Building

  • Appliances: None
  • Architectural Style: Bungalow
  • Basement Features: Separate entrance
  • Basement Type: Partial
  • Construction Style: Detached
  • Cooling Type: Central air conditioning
  • Exterior Finish: Stucco
  • Fireplace: No
  • Flooring Type: Hardwood, Linoleum
  • Interior Size: 871 sqft
  • Building Type: House
  • Stories: 1

Land

  • Land Size: 6500 sqft|4,051 - 7,250 sqft

Ownership

  • Type: Freehold

Structure

  • Structure: Porch

Zoning

  • Description: R-MD

Information entered by 2 PERCENT REALTY
Listing information last updated on: 2025-11-17 15:10:54


Book your free home evaluation with a 1% REALTOR® now!


How much could you save in commission selling with One Percent Realty?

Slide to select your home's price:

$500,000

Your One Percent Realty Commission savings

$500,000

Savings calculated using One Percent Realty's posted commission rates compared to another agent charging 7% on the first 100k & 3% on the balance + GST. Not all agents charge the same.

One Percent Realty's top FAQs

Q
What is the deal exactly, with One Percent Realty?

We are a fully licensed real estate company that offers full service but at a discount commission. In terms of services and exposure, we are identical to whoever you would like to compare us with. We are on MLS®, all the top internet real estates sites, we place a sign on your property ( if it's allowed ), we show the property, hold open houses, advertise it, handle all the negotiations, plus the conveyancing. There is nothing that you are not getting, except for a high commission!

Q
What do you charge?

We charge a total of $7,950 for residential properties under $400,000. For residential properties $400,000-$900,000 we charge $9,950. For residential properties over $900,000 we charge 1% of the sale price plus $950. Plus Applicable taxes, of course. We also offer the flexibility to offer more commission to the buyer's agent, if you want to. It is as simple as that! For commercial properties, farms, or development properties please contact a One Percent agent directly or fill out the market evaluation form on the bottom right of our website pages and a One Percent agent will get back to you to discuss the particulars.

Q
Are your listings on MLS® and realtor.ca?

Yes, and yes.


Learn more about the One Percent Realty Deal