15507 Range Road 23, Schuler

2025-09-28
 

Quick Summary

Location
15507 Range Road 23, Schuler, Alberta T0J3B0
Price
$349,000 CAD
Status:
For Sale
Property Type:
Single Family
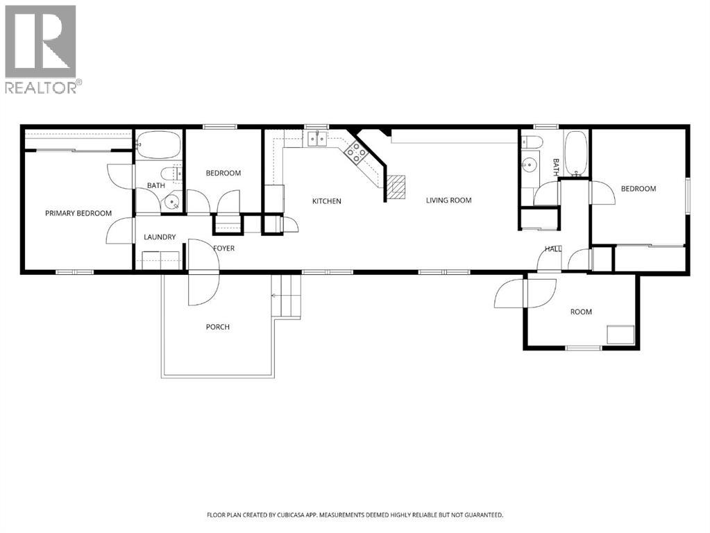
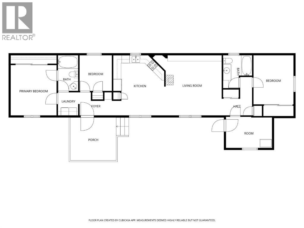
Area:
1152 sqft
Bedrooms:
3
Bathrooms:
2
Year of Construction:
1986

MLS®#A2260587

Property Description

51.4 Acres of land 30 mins from Dunmore and 8 min from Schuler. Only 350 meters off Hwy 41. Has barbwire fencing and corrals around the property making this a great opportunity for a cattle ranch. There is a coulee dividing two areas of land that have been cultivated in years past. The property has 2 wells, One used for the house and the other for livestock water. The same owner of the property for the last 40 years, has farmed the portions of cultivated land and also had Cattle, Horses and Chickens. There are various outbuildings, some were used for chicken Coops, 1 is currently a workshop, and there is a barn. Mobile home as a newer furnace (2 yrs old) and recently updated deck. Fully fenced area around the front of the home. Enjoy wide open prairie views from the current home, or Explore the opportunity to build your dream home in this peaceful location. If you are looking for a good size plot of country property to put your roots down, this could be it! Contact an agent to find out more and book your showing. (id:32467)

Property Features

Building

  • Appliances: Washer, Refrigerator, Stove, Dryer
  • Architectural Style: Mobile Home
  • Basement Type: None
  • Construction Style: Detached
  • Cooling Type: Window air conditioner, Wall unit
  • Exterior Finish: Aluminum siding
  • Fireplace: No
  • Flooring Type: Carpeted, Laminate, Linoleum
  • Interior Size: 1152 sqft
  • Building Type: Manufactured Home
  • Stories: 1

Land

  • Land Size: 51.4 ac|50 - 79 acres

Ownership

  • Type: Freehold

Structure

  • Structure: Deck

Zoning

  • Description: A2

Information entered by 2 PERCENT REALTY
Listing information last updated on: 2025-09-28 15:01:43


Book your free home evaluation with a 1% REALTOR® now!


How much could you save in commission selling with One Percent Realty?

Slide to select your home's price:

$500,000

Your One Percent Realty Commission savings

$500,000

Savings calculated using One Percent Realty's posted commission rates compared to another agent charging 7% on the first 100k & 3% on the balance + GST. Not all agents charge the same.

One Percent Realty's top FAQs

Q
What is the deal exactly, with One Percent Realty?

We are a fully licensed real estate company that offers full service but at a discount commission. In terms of services and exposure, we are identical to whoever you would like to compare us with. We are on MLS®, all the top internet real estates sites, we place a sign on your property ( if it's allowed ), we show the property, hold open houses, advertise it, handle all the negotiations, plus the conveyancing. There is nothing that you are not getting, except for a high commission!

Q
What do you charge?

We charge a total of $7,950 for residential properties under $400,000. For residential properties $400,000-$900,000 we charge $9,950. For residential properties over $900,000 we charge 1% of the sale price plus $950. Plus Applicable taxes, of course. We also offer the flexibility to offer more commission to the buyer's agent, if you want to. It is as simple as that! For commercial properties, farms, or development properties please contact a One Percent agent directly or fill out the market evaluation form on the bottom right of our website pages and a One Percent agent will get back to you to discuss the particulars.

Q
Are your listings on MLS® and realtor.ca?

Yes, and yes.


Learn more about the One Percent Realty Deal