8701 105 Street, Clairmont

2025-09-27
 

Quick Summary

Location
8701 105 Street, Clairmont, Alberta T8x5B2
Price
$575,000 CAD
Status:
For Sale
Property Type:
Vacant Land

MLS®#A2259908

Property Description

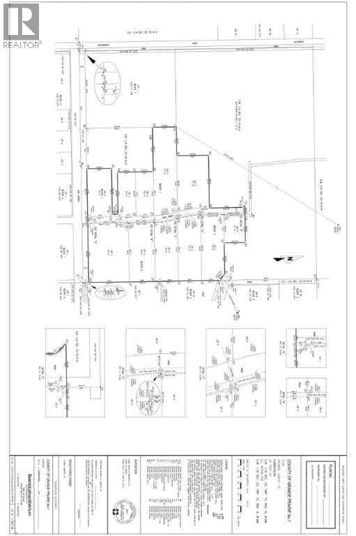
4.4 acres light industrial parcel with all essential services, including municipal water, sanitary sewer, storm sewer, 3 phase power and fibre optic telecommunication services available at the property line. Building construction can be started immediately. This lot is part of phase 1 of the subdivision within “West Clairmont Industrial Park” and is accessible from Bauman Road. This development is close to two major highways, Hwy 42 and Hwy 2. (id:32467)

Property Features

Building

  • Fireplace: No

Land

  • Land Size: 4.4 ac|2 - 4.99 acres

Ownership

  • Type: Freehold

Zoning

  • Description: RM-2

Information entered by RE/MAX House of Real Estate
Listing information last updated on: 2025-09-26 23:47:24


Book your free home evaluation with a 1% REALTOR® now!


How much could you save in commission selling with One Percent Realty?

Slide to select your home's price:

$500,000

Your One Percent Realty Commission savings

$500,000

Savings calculated using One Percent Realty's posted commission rates compared to another agent charging 7% on the first 100k & 3% on the balance + GST. Not all agents charge the same.

One Percent Realty's top FAQs

Q
What is the deal exactly, with One Percent Realty?

We are a fully licensed real estate company that offers full service but at a discount commission. In terms of services and exposure, we are identical to whoever you would like to compare us with. We are on MLS®, all the top internet real estates sites, we place a sign on your property ( if it's allowed ), we show the property, hold open houses, advertise it, handle all the negotiations, plus the conveyancing. There is nothing that you are not getting, except for a high commission!

Q
What do you charge?

We charge a total of $7,950 for residential properties under $400,000. For residential properties $400,000-$900,000 we charge $9,950. For residential properties over $900,000 we charge 1% of the sale price plus $950. Plus Applicable taxes, of course. We also offer the flexibility to offer more commission to the buyer's agent, if you want to. It is as simple as that! For commercial properties, farms, or development properties please contact a One Percent agent directly or fill out the market evaluation form on the bottom right of our website pages and a One Percent agent will get back to you to discuss the particulars.

Q
Are your listings on MLS® and realtor.ca?

Yes, and yes.


Learn more about the One Percent Realty Deal