313 3 Avenue W, Hanna

2025-09-14
 

Quick Summary

Location
313 3 Avenue W, Hanna, Alberta T0J1P0
Price
$275,000 CAD
Status:
For Sale
Property Type:
Single Family
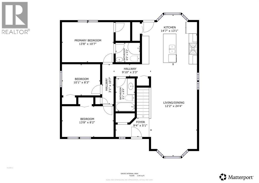
Area:
1170 sqft
Bedrooms:
3 bed +1
Bathrooms:
3
Year of Construction:
1988
Video Link:

MLS®#A2256645

Property Description

This spacious 4 bedroom, 3 bathroom home offers a great layout and is ideally located close to the pool, skating rink, rec centre and from JCC K-12 school. The beautiful kitchen has a gas stove, large island and plenty of cupboard space. Highlights include hardwood flooring, central air conditioning, central vacuum and a projector with surround sound in the basement. The large primary suite includes an ensuite with a shower. Outdoors, enjoy the huge two-tiered deck with a built-in fireplace. A double detached garage with two vehicle doors provides great storage or parking.As an added bonus the home offers quick possession and the possibility of being sold completely furnished! (id:32467)

Property Features

Ammenities Near By

  • Ammenities Near By: Golf Course, Park, Playground, Recreation Nearby, Schools, Shopping, Water Nearby

Building

  • Appliances: Washer, Refrigerator, Range - Gas, Dishwasher, Dryer, Microwave, Window Coverings
  • Architectural Style: Bungalow
  • Basement Development: Finished
  • Basement Type: Full (Finished)
  • Construction Style: Detached
  • Cooling Type: Central air conditioning
  • Exterior Finish: Vinyl siding
  • Fireplace: No
  • Flooring Type: Hardwood
  • Interior Size: 1170 sqft
  • Building Type: House
  • Stories: 1

Land

  • Land Size: 6250 sqft|4,051 - 7,250 sqft

Ownership

  • Type: Freehold

Structure

  • Structure: Deck

Zoning

  • Description: R2

Information entered by Real Estate Centre
Listing information last updated on: 2026-01-12 20:31:39


Book your free home evaluation with a 1% REALTOR® now!


How much could you save in commission selling with One Percent Realty?

Slide to select your home's price:

$500,000

Your One Percent Realty Commission savings

$500,000

Savings calculated using One Percent Realty's posted commission rates compared to another agent charging 7% on the first 100k & 3% on the balance + GST. Not all agents charge the same.

One Percent Realty's top FAQs

Q
What is the deal exactly, with One Percent Realty?

We are a fully licensed real estate company that offers full service but at a discount commission. In terms of services and exposure, we are identical to whoever you would like to compare us with. We are on MLS®, all the top internet real estates sites, we place a sign on your property ( if it's allowed ), we show the property, hold open houses, advertise it, handle all the negotiations, plus the conveyancing. There is nothing that you are not getting, except for a high commission!

Q
What do you charge?

We charge a total of $7,950 for residential properties under $400,000. For residential properties $400,000-$900,000 we charge $9,950. For residential properties over $900,000 we charge 1% of the sale price plus $950. Plus Applicable taxes, of course. We also offer the flexibility to offer more commission to the buyer's agent, if you want to. It is as simple as that! For commercial properties, farms, or development properties please contact a One Percent agent directly or fill out the market evaluation form on the bottom right of our website pages and a One Percent agent will get back to you to discuss the particulars.

Q
Are your listings on MLS® and realtor.ca?

Yes, and yes.


Learn more about the One Percent Realty Deal