103, 10104 97 Avenue, Grande Prairie

2025-08-27
 

Quick Summary

Location
103, 10104 97 Avenue, Grande Prairie, Alberta T8V7X6
Price
$20 CAD
Status:
For lease
Property Type:
Office
Area:
8137 sqft
Year of Construction:
2001

MLS®#A2249607

Property Description

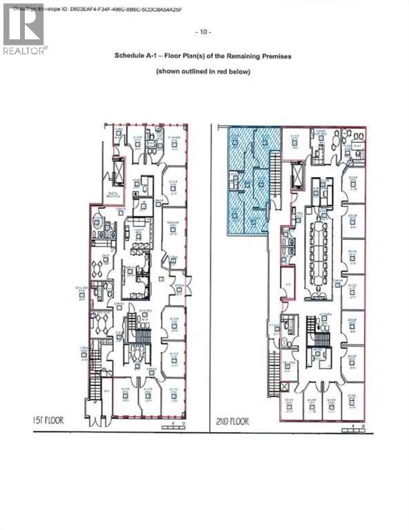
8,137sf of exceptional office space available in the heart of the downtown central business district. This well-designed property offers both main floor and upper level, with elevator and central interior stairway access to the second floor. The layout features 27 private offices - most with large exterior windows, 2 spacious boardrooms, an inviting main floor reception area, 4 washrooms, 2 kitchenettes, several open workspace/waiting/bullpen areas, a mail/copier room, a data room, and storage rooms - providing everything needed for a functional and professional workspace. Ideally suited for professional services, corporate offices, or businesses seeking a strong downtown presence. There is an abundance of parking here with a large city parking lot adjacent to the parking area for this building. NNN Lease: Base rent $13,561.67+ GST. Additional Rent $6,251.36+ GST includes condo fees, taxes. Tenant is responsible for utilities. This space could be divided into separate upper/lower units if desired. (id:32467)

Property Features

Building

  • Fireplace: No
  • Interior Size: 8137 sqft
  • Building Type: Offices

Land

  • Land Size: Unknown

Information entered by RE/MAX Grande Prairie
Listing information last updated on: 2026-03-01 16:22:12


Book your free home evaluation with a 1% REALTOR® now!


How much could you save in commission selling with One Percent Realty?

Slide to select your home's price:

$500,000

Your One Percent Realty Commission savings

$500,000

Savings calculated using One Percent Realty's posted commission rates compared to another agent charging 7% on the first 100k & 3% on the balance + GST. Not all agents charge the same.

One Percent Realty's top FAQs

Q
What is the deal exactly, with One Percent Realty?

We are a fully licensed real estate company that offers full service but at a discount commission. In terms of services and exposure, we are identical to whoever you would like to compare us with. We are on MLS®, all the top internet real estates sites, we place a sign on your property ( if it's allowed ), we show the property, hold open houses, advertise it, handle all the negotiations, plus the conveyancing. There is nothing that you are not getting, except for a high commission!

Q
What do you charge?

We charge a total of $7,950 for residential properties under $400,000. For residential properties $400,000-$900,000 we charge $9,950. For residential properties over $900,000 we charge 1% of the sale price plus $950. Plus Applicable taxes, of course. We also offer the flexibility to offer more commission to the buyer's agent, if you want to. It is as simple as that! For commercial properties, farms, or development properties please contact a One Percent agent directly or fill out the market evaluation form on the bottom right of our website pages and a One Percent agent will get back to you to discuss the particulars.

Q
Are your listings on MLS® and realtor.ca?

Yes, and yes.


Learn more about the One Percent Realty Deal