925 Yuill Street SE, Medicine Hat

2025-08-19
 

Quick Summary

Location
925 Yuill Street SE, Medicine Hat, Alberta T1A0Y9
Price
$129,000 CAD
Status:
For Sale
Property Type:
Vacant Land

MLS®#A2249786

Property Description

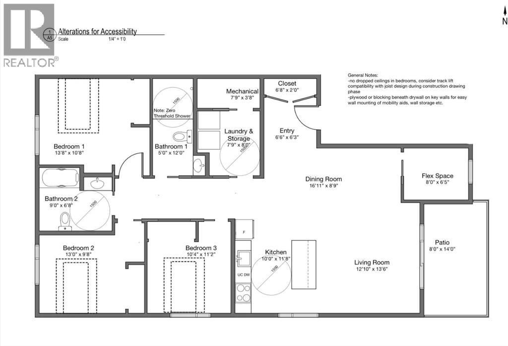
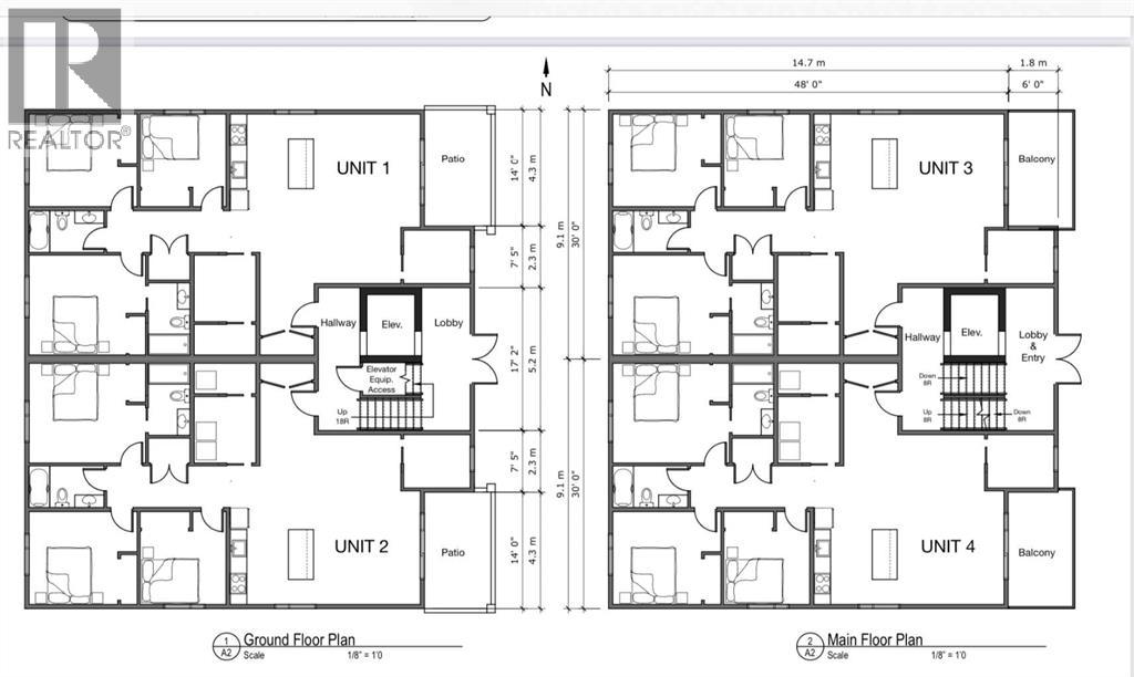
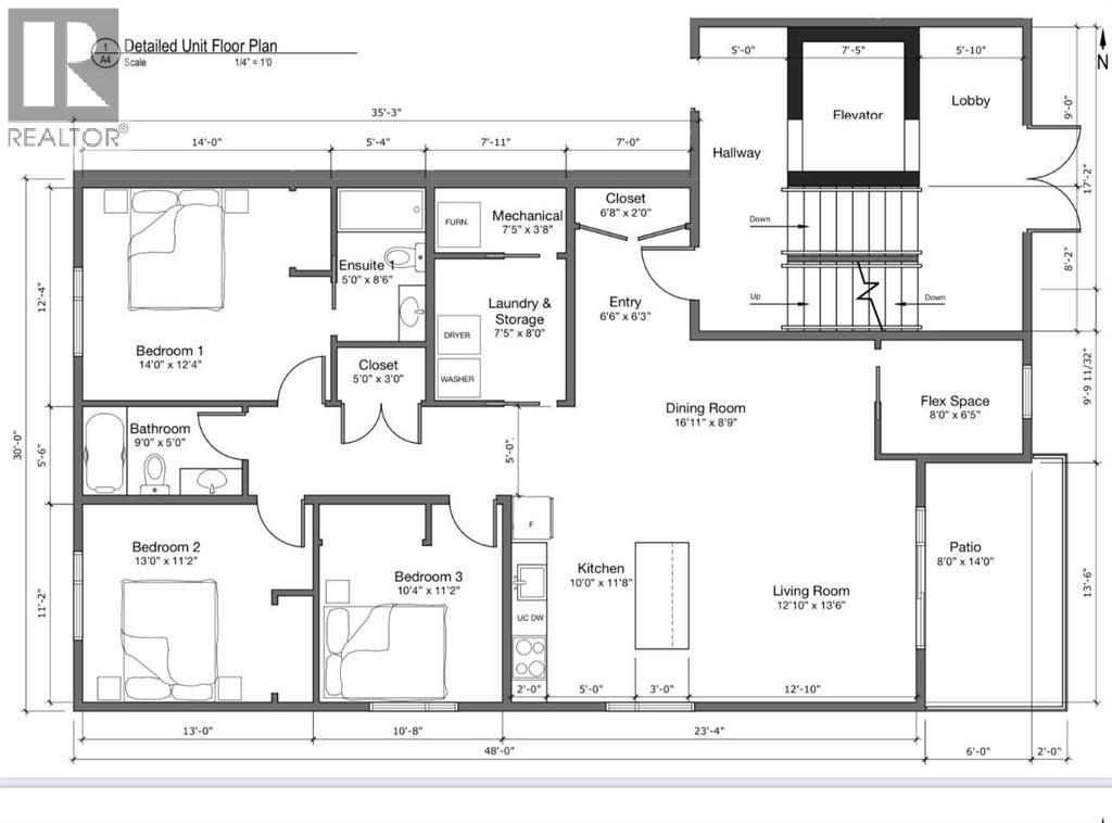
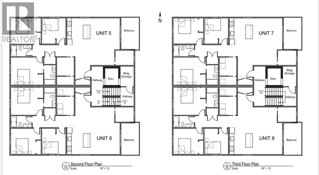
Rare opportunity to secure a 10,400 sq ft cleared parcel in Medicine Hat, ready for immediate development. Currently zoned R3, this property offers exceptional flexibility—perfect for duplexes, townhomes, or other multi-family projects. With potential to rezone for mixed-use development, the possibilities are endless. Surrounded by mature trees, this lot also provides the ideal setting for a dream single-family home, while still leaving plenty of room for a spacious yard and garage. The plans/drawings pictured have been preliminarily approved, would be subject to final approval. (id:32467)

Property Features

Building

  • Fireplace: No

Land

  • Land Size: 10400 sqft|7,251 - 10,889 sqft

Ownership

  • Type: Freehold

Zoning

  • Description: R-MD

Information entered by RIVER STREET REAL ESTATE
Listing information last updated on: 2025-08-22 02:33:15


Book your free home evaluation with a 1% REALTOR® now!


How much could you save in commission selling with One Percent Realty?

Slide to select your home's price:

$500,000

Your One Percent Realty Commission savings

$500,000

Savings calculated using One Percent Realty's posted commission rates compared to another agent charging 7% on the first 100k & 3% on the balance + GST. Not all agents charge the same.

One Percent Realty's top FAQs

Q
What is the deal exactly, with One Percent Realty?

We are a fully licensed real estate company that offers full service but at a discount commission. In terms of services and exposure, we are identical to whoever you would like to compare us with. We are on MLS®, all the top internet real estates sites, we place a sign on your property ( if it's allowed ), we show the property, hold open houses, advertise it, handle all the negotiations, plus the conveyancing. There is nothing that you are not getting, except for a high commission!

Q
What do you charge?

We charge a total of $7,950 for residential properties under $400,000. For residential properties $400,000-$900,000 we charge $9,950. For residential properties over $900,000 we charge 1% of the sale price plus $950. Plus Applicable taxes, of course. We also offer the flexibility to offer more commission to the buyer's agent, if you want to. It is as simple as that! For commercial properties, farms, or development properties please contact a One Percent agent directly or fill out the market evaluation form on the bottom right of our website pages and a One Percent agent will get back to you to discuss the particulars.

Q
Are your listings on MLS® and realtor.ca?

Yes, and yes.


Learn more about the One Percent Realty Deal