9543 114 Avenue, Clairmont

2025-07-29
 

Quick Summary

Location
9543 114 Avenue, Clairmont, Alberta T8X0W7
Price
$599,900 CAD
Status:
For Sale
Property Type:
Multi-family
Area:
1287 sqft
Bedrooms:
2 bed +4
Bathrooms:
4
Year of Construction:
2025

MLS®#A2242759

Property Description

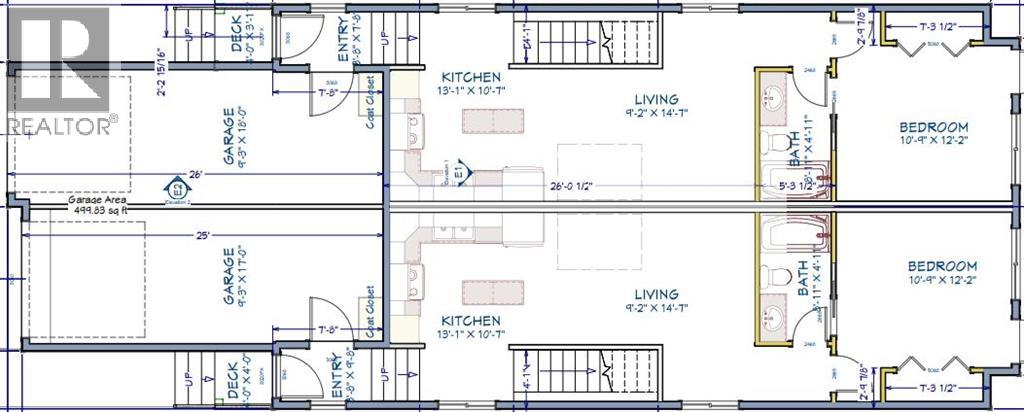
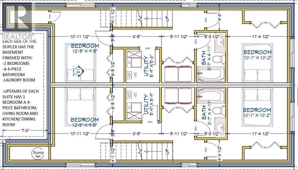
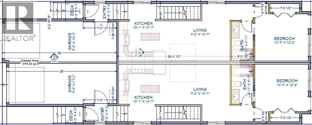
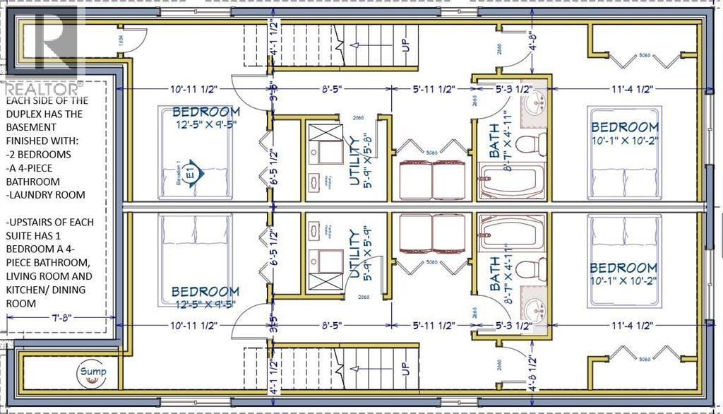
The New Waverley Side-by-Side Duplex by Derksen Builders offers a rare investment opportunity to own a fully independent duplex on one title, with each side featuring 3 bedrooms, two 4-piece bathrooms, a garage, and separate power and gas meters, furnaces, and hot water on demand systems. Designed as a turnkey income property, each unit will be outfitted with a set of basic stainless steel kitchen appliances, range hood fans and washer and dryer. Built with energy efficiency in mind, the construction includes IKO lifetime fiberglass shingles, high-efficiency furnaces, LED lighting, argon-filled double-pane windows, and more. Interior finishes feature vinyl plank flooring on the main level common areas and bathrooms and carpet on the way down stairs and in all bedrooms, laminate counters, soft-close cabinets, real wood dovetail-jointed drawers, and adjustable shelving. The main floor layout includes the kitchen, dining and living areas, one bedroom, and a full bathroom, while the fully finished basement offers two additional bedrooms, a second full bathroom, laundry room, and storage. Backed by a 1-2-5-10 New Home Warranty—covering 1-year builder, 2-year systems, 5-year building envelope, and 10-year structural—this build is scheduled for completion in mid-December 2025. Located in Clairmont, just 5 minutes north of Grande Prairie, this community offers low county taxes (48% less than the city), a K–8 school, walking trails, parks, and quick access to the Clairmont Industrial Park, home to hundreds of oil, gas, and industry service companies, making it an ideal location for both investors and residents alike. If you are wanting to purchase more than one we can build up to 3 IN A ROW !(Pictures are samples and do not represent exact build and option specs) (id:32467)

Property Features

Ammenities Near By

  • Ammenities Near By: Park, Playground, Schools, Shopping

Building

  • Appliances: Refrigerator, Dishwasher, Stove, Washer & Dryer
  • Architectural Style: Bungalow
  • Basement Development: Finished
  • Basement Type: Full (Finished)
  • Construction Style: Attached
  • Cooling Type: None
  • Exterior Finish: Concrete
  • Fireplace: No
  • Flooring Type: Carpeted, Vinyl Plank
  • Interior Size: 1287 sqft
  • Stories: 1

Features

  • Feature: Closet Organizers, No Animal Home, No Smoking Home

Land

  • Land Size: 4143 sqft|4,051 - 7,250 sqft

Ownership

  • Type: Freehold

Structure

  • Structure: None

Zoning

  • Description: MDR

Information entered by Sutton Group Grande Prairie Professionals
Listing information last updated on: 2025-12-04 21:21:24


Book your free home evaluation with a 1% REALTOR® now!


How much could you save in commission selling with One Percent Realty?

Slide to select your home's price:

$500,000

Your One Percent Realty Commission savings

$500,000

Savings calculated using One Percent Realty's posted commission rates compared to another agent charging 7% on the first 100k & 3% on the balance + GST. Not all agents charge the same.

One Percent Realty's top FAQs

Q
What is the deal exactly, with One Percent Realty?

We are a fully licensed real estate company that offers full service but at a discount commission. In terms of services and exposure, we are identical to whoever you would like to compare us with. We are on MLS®, all the top internet real estates sites, we place a sign on your property ( if it's allowed ), we show the property, hold open houses, advertise it, handle all the negotiations, plus the conveyancing. There is nothing that you are not getting, except for a high commission!

Q
What do you charge?

We charge a total of $7,950 for residential properties under $400,000. For residential properties $400,000-$900,000 we charge $9,950. For residential properties over $900,000 we charge 1% of the sale price plus $950. Plus Applicable taxes, of course. We also offer the flexibility to offer more commission to the buyer's agent, if you want to. It is as simple as that! For commercial properties, farms, or development properties please contact a One Percent agent directly or fill out the market evaluation form on the bottom right of our website pages and a One Percent agent will get back to you to discuss the particulars.

Q
Are your listings on MLS® and realtor.ca?

Yes, and yes.


Learn more about the One Percent Realty Deal