5 Riverford Close W, Lethbridge

2025-06-26
 

Quick Summary

Location
5 Riverford Close W, Lethbridge, Alberta T1K8E5
Price
$619,999 CAD
Status:
For Sale
Property Type:
Single Family
Area:
1535 sqft
Bedrooms:
2 bed +2
Bathrooms:
3
Year of Construction:
2017
Video Link:

MLS®#A2234545

Property Description

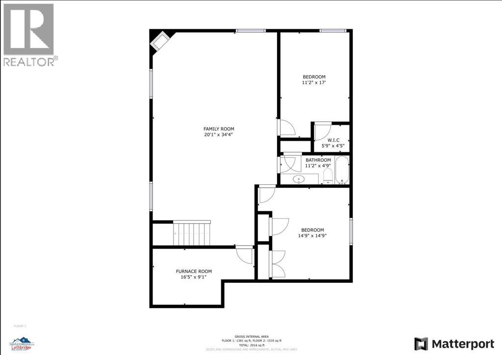
If you’ve been holding out for the perfect bungalow, this might just be the one! Sitting on a corner lot, this custom-built home checks a ton of boxes. From the moment you walk in, you’ll notice the vaulted ceilings, great hardwood floors, and all the natural light flooding in. The main floor layout is smart and super functional with an open concept kitchen (quartz countertops, of course), dining and living space, a full 4-piece bathroom, and a good-sized bedroom. Main floor laundry? Yep, that too!The primary suite is a standout—it’s got a walk-in closet, a big 5-piece ensuite with a jetted tub, dual vanity, and just feels like a proper retreat. Head downstairs and you’re greeted by a massive family room (over 500 sq ft!) with a cozy fireplace, two more large bedrooms (one with another walk-in closet), and another full 4-piece bath. And the extras? This place is loaded. A/C, underground sprinklers, air exchange system, surround sound, heated garage, central vac, custom blinds, and window coverings throughout. Outside, you get an amazing deck, and some of the best landscaping you'll see on the market right now! If you're looking for a bungalow that doesn’t cut corners, this one's worth a look. (id:32467)

Property Features

Ammenities Near By

  • Ammenities Near By: Park, Playground, Schools, Shopping, Water Nearby

Building

  • Appliances: See remarks
  • Architectural Style: Bungalow
  • Basement Development: Finished
  • Basement Type: Full (Finished)
  • Construction Style: Detached
  • Cooling Type: Central air conditioning
  • Exterior Finish: Brick, Vinyl siding
  • Fireplace: Yes
  • Flooring Type: Carpeted, Hardwood, Tile
  • Interior Size: 1535 sqft
  • Building Type: House
  • Stories: 1

Land

  • Land Size: 5668 sqft|4,051 - 7,250 sqft

Ownership

  • Type: Freehold

Structure

  • Structure: Deck

Zoning

  • Description: R-CL

Information entered by Lethbridge Real Estate.com
Listing information last updated on: 2025-12-12 17:10:29


Book your free home evaluation with a 1% REALTOR® now!


How much could you save in commission selling with One Percent Realty?

Slide to select your home's price:

$500,000

Your One Percent Realty Commission savings

$500,000

Savings calculated using One Percent Realty's posted commission rates compared to another agent charging 7% on the first 100k & 3% on the balance + GST. Not all agents charge the same.

One Percent Realty's top FAQs

Q
What is the deal exactly, with One Percent Realty?

We are a fully licensed real estate company that offers full service but at a discount commission. In terms of services and exposure, we are identical to whoever you would like to compare us with. We are on MLS®, all the top internet real estates sites, we place a sign on your property ( if it's allowed ), we show the property, hold open houses, advertise it, handle all the negotiations, plus the conveyancing. There is nothing that you are not getting, except for a high commission!

Q
What do you charge?

We charge a total of $7,950 for residential properties under $400,000. For residential properties $400,000-$900,000 we charge $9,950. For residential properties over $900,000 we charge 1% of the sale price plus $950. Plus Applicable taxes, of course. We also offer the flexibility to offer more commission to the buyer's agent, if you want to. It is as simple as that! For commercial properties, farms, or development properties please contact a One Percent agent directly or fill out the market evaluation form on the bottom right of our website pages and a One Percent agent will get back to you to discuss the particulars.

Q
Are your listings on MLS® and realtor.ca?

Yes, and yes.


Learn more about the One Percent Realty Deal