11419 95 Street, Clairmont

2025-06-23
 

Quick Summary

Location
11419 95 Street, Clairmont, Alberta T8X0W9
Price
$364,900 CAD
Status:
For Sale
Property Type:
Single Family
Area:
1232 sqft
Bedrooms:
3
Bathrooms:
3
Year of Construction:
2025
Video Link:

MLS®#A2233756

Property Description

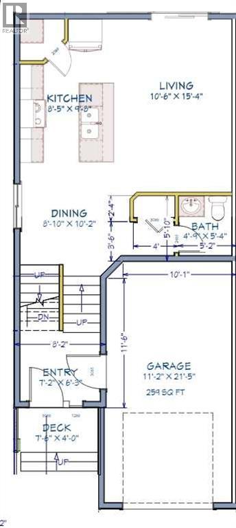
THE NEW PARKER LUXURY DUPLEX PRESALE- CONSTRUCTION STARTS JULY 2025 AND BACKING ONTO AN EASEMENT, January 2026 possession! -! Modern Luxury 3 bed 2.5 bath Duplex featuring a new design with the Master Bedroom retreat over the garage, up a few more stairs you will find 2 more bedrooms, the main bathroom and the laundry room that accomodates a side by side washer dryer. The contemporary exterior will keep you impressed every time you pull into the driveway. Come on in and be amazed by the incredible kitchen featuring quartz counters, tile back splash, pendant lighting, soft close shaker style cabinets, real wood soft close drawers and Valhalla barn wood vinyl plank flooring. We know storage is important so we included a huge corner pantry. The gorgeous kitchen is finished off with Stainless Steel kitchen appliances. The main floor features an open concept layout throughout the kitchen, living room and dining room and features a handy power room 1/2 bathroom right by the entry. Built-in savings with energy efficiency include hot water on demand, high-efficiency furnace, low-e argon filled double paned windows, LED lighting and LIFETIME fiberglass shingles. The basement is unfinished and ready for your imagination to create the space of your dreams and can accomdate 2 bedrooms and a full bathroom. The 11' by 21' garage is dry-walled insulated and fire taped and has a wifi enabled garage door opener. Clairmont has many kids parks, miles of walking trails and an award winning K-8 primary school and low county taxes, estimated on this home to be $2409 per year. Put your deposit down and reserve your new place today!(SAMPLE PICTURES and 3D tour OF same PLAN) (id:32467)

Property Features

Ammenities Near By

  • Ammenities Near By: Playground, Schools

Building

  • Appliances: Refrigerator, Range - Electric, Dishwasher, Microwave Range Hood Combo, Water Heater - Tankless
  • Basement Development: Unfinished
  • Basement Type: Full (Unfinished)
  • Construction Style: Semi-detached
  • Cooling Type: None
  • Exterior Finish: Concrete
  • Fireplace: No
  • Flooring Type: Carpeted, Vinyl
  • Interior Size: 1232 sqft
  • Building Type: Duplex
  • Stories: 3

Features

  • Feature: No neighbours behind, No Animal Home, No Smoking Home

Land

  • Land Size: 3281 sqft|0-4,050 sqft

Ownership

  • Type: Freehold

Structure

  • Structure: None

Zoning

  • Description: mdr

Information entered by Sutton Group Grande Prairie Professionals
Listing information last updated on: 2025-09-02 20:21:07


Book your free home evaluation with a 1% REALTOR® now!


How much could you save in commission selling with One Percent Realty?

Slide to select your home's price:

$500,000

Your One Percent Realty Commission savings

$500,000

Savings calculated using One Percent Realty's posted commission rates compared to another agent charging 7% on the first 100k & 3% on the balance + GST. Not all agents charge the same.

One Percent Realty's top FAQs

Q
What is the deal exactly, with One Percent Realty?

We are a fully licensed real estate company that offers full service but at a discount commission. In terms of services and exposure, we are identical to whoever you would like to compare us with. We are on MLS®, all the top internet real estates sites, we place a sign on your property ( if it's allowed ), we show the property, hold open houses, advertise it, handle all the negotiations, plus the conveyancing. There is nothing that you are not getting, except for a high commission!

Q
What do you charge?

We charge a total of $7,950 for residential properties under $400,000. For residential properties $400,000-$900,000 we charge $9,950. For residential properties over $900,000 we charge 1% of the sale price plus $950. Plus Applicable taxes, of course. We also offer the flexibility to offer more commission to the buyer's agent, if you want to. It is as simple as that! For commercial properties, farms, or development properties please contact a One Percent agent directly or fill out the market evaluation form on the bottom right of our website pages and a One Percent agent will get back to you to discuss the particulars.

Q
Are your listings on MLS® and realtor.ca?

Yes, and yes.


Learn more about the One Percent Realty Deal