262150 Horse Creek Road, Rural Rocky View County

2025-06-23
 

Quick Summary

Location
262150 Horse Creek Road, Rural Rocky View County, Alberta T4C1A4
Price
$1,949,000 CAD
Status:
For Sale
Property Type:
Single Family
Area:
2929 sqft
Bedrooms:
4 bed +2
Bathrooms:
5
Year of Construction:
1981

MLS®#A2233607

Property Description

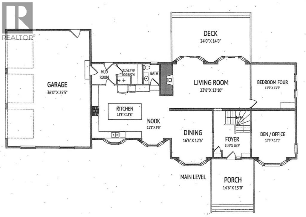
Subdivision is being applied for in the form of three 3.95 acre parcels (M/L) including the existing home. The seller is willing to sell the current property as is or the the existing home with the condition of the subdivision being approved. This is a remarkable renovated executive home currently on 19.87 acres that has been stripped to the studs. Almost everything is new including interior drywall, exterior sheeting, siding, shingles, windows, exterior and interior doors, garage concrete floor, exterior lighting, decks, railings plus a complete new water system and natural gas lines The western mountain view is incredible!! Six bedrooms with large primary bedroom featuring a large walk in closet and luxury ensuite, dream kitchen with huge center island, main floor den, games room, sauna, two fireplaces, glass railings, four bathrooms plus a wash station for the fur babies. Three car garage (3 doors) with epoxy finished floors. The list goes on and on. The property is located mere seconds north of Cochrane city limits and the new 130 acre sports park. Excellent sub division potential for 3 additional lots. According to Rocky View County up to 8 horses are allowed on this property. The is nothing left to do but move in!! (id:32467)

Property Features

Building

  • Appliances: Cooktop - Gas, Dishwasher, Microwave, Oven - Built-In, Hood Fan, See remarks, Garage door opener
  • Basement Development: Finished
  • Basement Type: Full (Finished)
  • Construction Style: Detached
  • Cooling Type: None
  • Exterior Finish: Vinyl siding
  • Fireplace: Yes
  • Flooring Type: Ceramic Tile, Laminate
  • Interior Size: 2929 sqft
  • Building Type: House
  • Stories: 2
  • Utility Water: Well, Cistern

Features

  • Feature: See remarks, Other

Land

  • Land Size: 19.87 ac|10 - 49 acres
  • Sewer: Holding Tank

Ownership

  • Type: Freehold

Structure

  • Structure: Deck

Zoning

  • Description: R-RUR

Information entered by RE/MAX Realty Professionals
Listing information last updated on: 2025-11-13 13:18:11


Book your free home evaluation with a 1% REALTOR® now!


How much could you save in commission selling with One Percent Realty?

Slide to select your home's price:

$500,000

Your One Percent Realty Commission savings

$500,000

Savings calculated using One Percent Realty's posted commission rates compared to another agent charging 7% on the first 100k & 3% on the balance + GST. Not all agents charge the same.

One Percent Realty's top FAQs

Q
What is the deal exactly, with One Percent Realty?

We are a fully licensed real estate company that offers full service but at a discount commission. In terms of services and exposure, we are identical to whoever you would like to compare us with. We are on MLS®, all the top internet real estates sites, we place a sign on your property ( if it's allowed ), we show the property, hold open houses, advertise it, handle all the negotiations, plus the conveyancing. There is nothing that you are not getting, except for a high commission!

Q
What do you charge?

We charge a total of $7,950 for residential properties under $400,000. For residential properties $400,000-$900,000 we charge $9,950. For residential properties over $900,000 we charge 1% of the sale price plus $950. Plus Applicable taxes, of course. We also offer the flexibility to offer more commission to the buyer's agent, if you want to. It is as simple as that! For commercial properties, farms, or development properties please contact a One Percent agent directly or fill out the market evaluation form on the bottom right of our website pages and a One Percent agent will get back to you to discuss the particulars.

Q
Are your listings on MLS® and realtor.ca?

Yes, and yes.


Learn more about the One Percent Realty Deal