205, 11402 100 Street, Grande Prairie

2025-06-02
 

Quick Summary

Location
205, 11402 100 Street, Grande Prairie, Alberta T8V2N5
Price
$556 CAD
Status:
For lease
Property Type:
Office
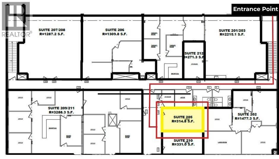
Area:
315 sqft
Year of Construction:
1980

MLS®#A2225967

Property Description

Discover an ideal office space for lease, perfectly suited for professionals seeking a private and quiet work environment. This 315 sq. ft. upstairs office space offers excellent exposure while maintaining a high level of privacy. The base rent of this unit is priced to be $14.00 per square foot with an additional cost of $7.16 making the total monthly rent come to an affordable $555.45. plus utilities. Ready for immediate possession, this space is perfect for solo entrepreneurs or small business owners looking to move in without delay. Don’t miss out—Book a viewing today! (id:32467)

Property Features

Building

  • Fireplace: No
  • Interior Size: 315 sqft
  • Building Type: Offices

Land

  • Land Size: Unknown

Information entered by RE/MAX Grande Prairie
Listing information last updated on: 2026-04-21 16:07:44


Book your free home evaluation with a 1% REALTOR® now!


How much could you save in commission selling with One Percent Realty?

Slide to select your home's price:

$500,000

Your One Percent Realty Commission savings

$500,000

Savings calculated using One Percent Realty's posted commission rates compared to another agent charging 7% on the first 100k & 3% on the balance + GST. Not all agents charge the same.

One Percent Realty's top FAQs

Q
What is the deal exactly, with One Percent Realty?

We are a fully licensed real estate company that offers full service but at a discount commission. In terms of services and exposure, we are identical to whoever you would like to compare us with. We are on MLS®, all the top internet real estates sites, we place a sign on your property ( if it's allowed ), we show the property, hold open houses, advertise it, handle all the negotiations, plus the conveyancing. There is nothing that you are not getting, except for a high commission!

Q
What do you charge?

We charge a total of $7,950 for residential properties under $400,000. For residential properties $400,000-$900,000 we charge $9,950. For residential properties over $900,000 we charge 1% of the sale price plus $950. Plus Applicable taxes, of course. We also offer the flexibility to offer more commission to the buyer's agent, if you want to. It is as simple as that! For commercial properties, farms, or development properties please contact a One Percent agent directly or fill out the market evaluation form on the bottom right of our website pages and a One Percent agent will get back to you to discuss the particulars.

Q
Are your listings on MLS® and realtor.ca?

Yes, and yes.


Learn more about the One Percent Realty Deal