1981 McCaskill Drive, Crossfield

2025-05-16
 

Quick Summary

Location
1981 McCaskill Drive, Crossfield, Alberta T0M0S0
Price
$498,900 CAD
Status:
For Sale
Property Type:
Single Family
Area:
1443 sqft
Bedrooms:
3
Bathrooms:
3
Year of Construction:
2025

MLS®#A2195073

Property Description

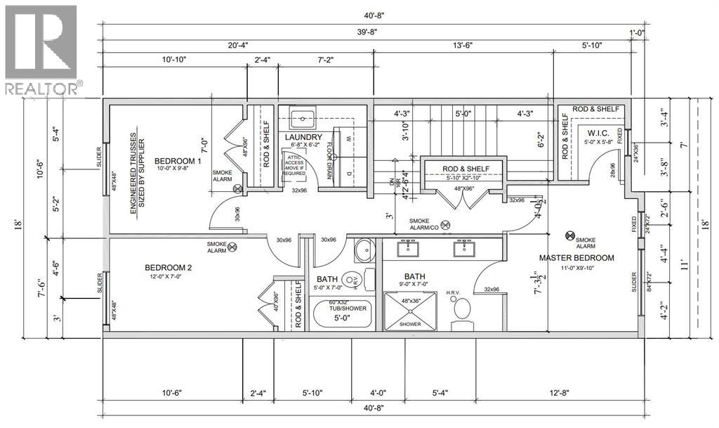
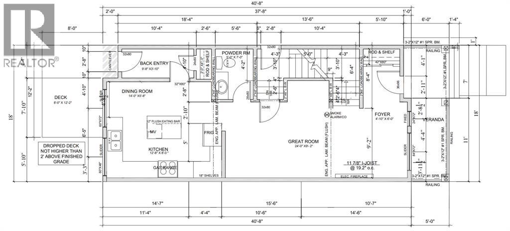
Experience the beauty of this custom-crafted home set in the peaceful surroundings of Crossfield. This pre-construction laned home offers 1,443 square feet of well-designed space across two stories, with 9FT ceilings on every level to enhance the open feel. The home includes a front porch and a backyard deck, ideal for spending time outdoors or hosting family gatherings.Inside, the main floor’s open concept design blends style with functionality. The kitchen features a breakfast bar, quartz countertops, stainless steel appliances, and textured cabinets. Natural light fills the great room, which includes a linear electric fireplace for added comfort. Durable vinyl plank (LVP) flooring, maple accents, and black exterior dual-pane windows provide a modern finish throughout the home. A conveniently located 2-piece powder room completes the main floor.Upstairs, the primary suite includes a 4-piece ensuite and a walk-in closet. Two additional bedrooms provide space for family or guests. A full bathroom and a laundry room with a sink add everyday convenience.Additional features include a double detached garage, fully landscaped backyard, and a roughed-in basement with a separate side entrance, offering potential for future development. Custom finishing options are also available.Located in Crossfield’s Iron Landing community, this home is near parks, playgrounds, shops, dining, and top-rated schools like Crossfield Elementary and W.G. Murdoch School. It’s under 10 minutes to Airdrie, 25 minutes to Calgary, and close to Highway 2 for commuting.Photos are from a previous build; Don’t wait—reach out to make this incredible property yours today! (id:32467)

Property Features

Ammenities Near By

  • Ammenities Near By: Park, Playground, Recreation Nearby, Schools, Shopping

Building

  • Appliances: Washer, Refrigerator, Range - Gas, Dishwasher, Dryer, Hood Fan
  • Basement Development: Unfinished
  • Basement Features: Separate entrance
  • Basement Type: Full (Unfinished)
  • Construction Style: Detached
  • Cooling Type: None
  • Exterior Finish: Concrete, Stone, Vinyl siding
  • Fireplace: Yes
  • Flooring Type: Carpeted, Concrete, Tile, Vinyl Plank
  • Interior Size: 1443 sqft
  • Building Type: House
  • Stories: 2

Features

  • Feature: Back lane, No Animal Home, No Smoking Home, Gas BBQ Hookup

Land

  • Land Size: 3432.52 sqft|0-4,050 sqft

Ownership

  • Type: Freehold

Structure

  • Structure: Deck

Zoning

  • Description: R-3

Information entered by 4th Street Holdings Ltd.
Listing information last updated on: 2025-12-24 22:18:24


Book your free home evaluation with a 1% REALTOR® now!


How much could you save in commission selling with One Percent Realty?

Slide to select your home's price:

$500,000

Your One Percent Realty Commission savings

$500,000

Savings calculated using One Percent Realty's posted commission rates compared to another agent charging 7% on the first 100k & 3% on the balance + GST. Not all agents charge the same.

One Percent Realty's top FAQs

Q
What is the deal exactly, with One Percent Realty?

We are a fully licensed real estate company that offers full service but at a discount commission. In terms of services and exposure, we are identical to whoever you would like to compare us with. We are on MLS®, all the top internet real estates sites, we place a sign on your property ( if it's allowed ), we show the property, hold open houses, advertise it, handle all the negotiations, plus the conveyancing. There is nothing that you are not getting, except for a high commission!

Q
What do you charge?

We charge a total of $7,950 for residential properties under $400,000. For residential properties $400,000-$900,000 we charge $9,950. For residential properties over $900,000 we charge 1% of the sale price plus $950. Plus Applicable taxes, of course. We also offer the flexibility to offer more commission to the buyer's agent, if you want to. It is as simple as that! For commercial properties, farms, or development properties please contact a One Percent agent directly or fill out the market evaluation form on the bottom right of our website pages and a One Percent agent will get back to you to discuss the particulars.

Q
Are your listings on MLS® and realtor.ca?

Yes, and yes.


Learn more about the One Percent Realty Deal