5114 50th Street, High Prairie

2025-04-30
 

Quick Summary

Location
5114 50th Street, High Prairie, Alberta T0G1E0
Price
$700,000 CAD
Status:
For Sale
Property Type:
Business
Area:
11213 sqft
Year of Construction:
1936

MLS®#A2215615

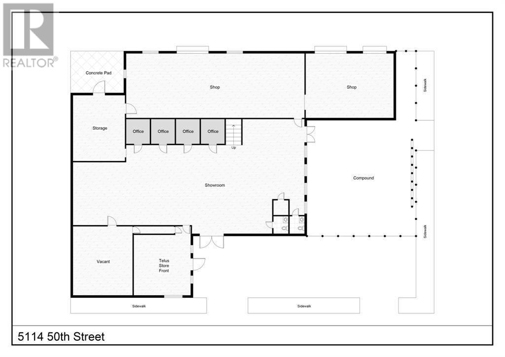
Property Description

For generations, Hebert Motorsports has been a trusted, family-owned pillar of the High Prairie community. This well-established business offers a complete powersports experience, selling new and pre-owned ATVs, Rangers, RZRs, snowmobiles, and motorcycles from leading brands like Polaris and Suzuki. In addition to sales, the dealership carries a full range of parts and accessories from top suppliers such as Parts Canada, Motovan, and Kimpex, supported by an on-site service department for repairs and maintenance. The commercial property houses both Hebert Motorsports and a TELUS location, offering flexibility for buyers—whether you're interested in a business-only purchase or prefer to continue the existing lease arrangement. Vendor financing is available for qualified buyers, making this an accessible opportunity to own a thriving, multi-faceted operation in Alberta’s vibrant powersports market. Don’t miss your chance to be part of this legacy—contact us today to review financials and schedule a viewing! (id:32467)

Property Features

Building

  • Fireplace: No
  • Interior Size: 11213 sqft
  • Building Type: Commercial Mix

Land

  • Land Size: Unknown

Zoning

  • Description: C1 Downtown Commercial

Information entered by Grassroots Realty Group - High Prairie
Listing information last updated on: 2025-05-02 14:50:58


Book your free home evaluation with a 1% REALTOR® now!


How much could you save in commission selling with One Percent Realty?

Slide to select your home's price:

$500,000

Your One Percent Realty Commission savings

$500,000

Savings calculated using One Percent Realty's posted commission rates compared to another agent charging 7% on the first 100k & 3% on the balance + GST. Not all agents charge the same.

One Percent Realty's top FAQs

Q
What is the deal exactly, with One Percent Realty?

We are a fully licensed real estate company that offers full service but at a discount commission. In terms of services and exposure, we are identical to whoever you would like to compare us with. We are on MLS®, all the top internet real estates sites, we place a sign on your property ( if it's allowed ), we show the property, hold open houses, advertise it, handle all the negotiations, plus the conveyancing. There is nothing that you are not getting, except for a high commission!

Q
What do you charge?

We charge a total of $7,950 for residential properties under $400,000. For residential properties $400,000-$900,000 we charge $9,950. For residential properties over $900,000 we charge 1% of the sale price plus $950. Plus Applicable taxes, of course. We also offer the flexibility to offer more commission to the buyer's agent, if you want to. It is as simple as that! For commercial properties, farms, or development properties please contact a One Percent agent directly or fill out the market evaluation form on the bottom right of our website pages and a One Percent agent will get back to you to discuss the particulars.

Q
Are your listings on MLS® and realtor.ca?

Yes, and yes.


Learn more about the One Percent Realty Deal