9820 100 Avenue, Grande Prairie

2025-01-06
 

Quick Summary

Location
9820 100 Avenue, Grande Prairie, Alberta T8V0T8
Price
$3,400,000 CAD
Status:
For Sale
Property Type:
Office
Area:
26205 sqft
Year of Construction:
1979

MLS®#A2184190

Property Description

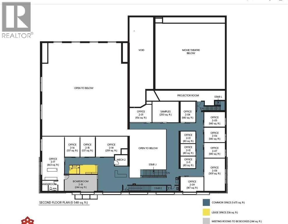
This is an incredible opportunity to purchase 26,205 SF of professional office space that has undergone a complete renovation in the heart of Grande Prairie. This former movie theater turned office, is a unique landmark property centrally located in the Grande Prairie area. It is currently being offered for sale at a fraction of the cost of new construction. The building has frontage exposure on 100 Avenue with 28 designated parking stalls and plenty of public parking in the vicinity. It is comprised of a spacious reception area, 32 designated offices, two boardrooms, staff lounge, two bull pen area's which can easily accommodate up to 26 additional work area's as your business continues to grow and a fully functional theater. This property literally has it all and should not be overlooked. Call your Commercial Realtor® today to book a showing. (id:32467)

Property Features

Building

  • Fireplace: No
  • Interior Size: 26205 sqft
  • Building Type: Offices

Land

  • Land Size: 1459.3 m2|10,890 - 21,799 sqft (1/4 - 1/2 ac)

Zoning

  • Description: CC

Information entered by RE/MAX Grande Prairie
Listing information last updated on: 2025-11-14 18:21:36


Book your free home evaluation with a 1% REALTOR® now!


How much could you save in commission selling with One Percent Realty?

Slide to select your home's price:

$500,000

Your One Percent Realty Commission savings

$500,000

Savings calculated using One Percent Realty's posted commission rates compared to another agent charging 7% on the first 100k & 3% on the balance + GST. Not all agents charge the same.

One Percent Realty's top FAQs

Q
What is the deal exactly, with One Percent Realty?

We are a fully licensed real estate company that offers full service but at a discount commission. In terms of services and exposure, we are identical to whoever you would like to compare us with. We are on MLS®, all the top internet real estates sites, we place a sign on your property ( if it's allowed ), we show the property, hold open houses, advertise it, handle all the negotiations, plus the conveyancing. There is nothing that you are not getting, except for a high commission!

Q
What do you charge?

We charge a total of $7,950 for residential properties under $400,000. For residential properties $400,000-$900,000 we charge $9,950. For residential properties over $900,000 we charge 1% of the sale price plus $950. Plus Applicable taxes, of course. We also offer the flexibility to offer more commission to the buyer's agent, if you want to. It is as simple as that! For commercial properties, farms, or development properties please contact a One Percent agent directly or fill out the market evaluation form on the bottom right of our website pages and a One Percent agent will get back to you to discuss the particulars.

Q
Are your listings on MLS® and realtor.ca?

Yes, and yes.


Learn more about the One Percent Realty Deal