Portion of NE 33 & NW 34 College Drive E, Brooks

2026-02-16
 

Quick Summary

Location
Portion of NE 33 & NW 34 College Drive E, Brooks, Alberta T1R1C8
Price
$2,834,000 CAD
Status:
For Sale
Property Type:
Vacant Land

MLS®#A2286688

Property Description

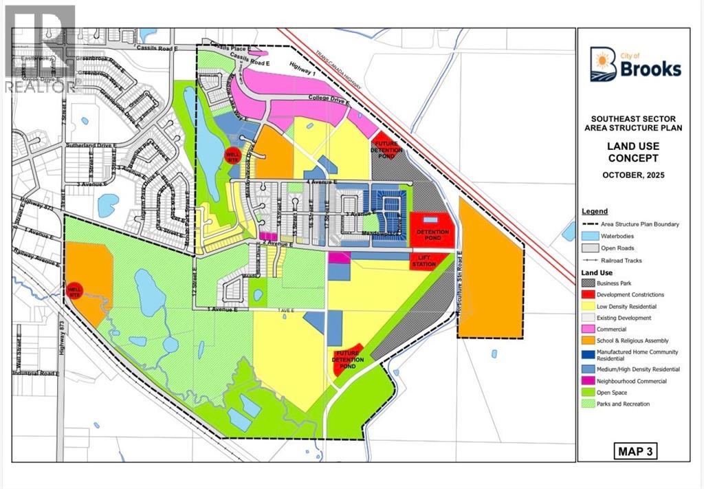
Prime 70.85 Acre Development Opportunity in Brooks. Seize this exceptional opportunity to develop 2 parcels totaling 70.85 acres of prime commercial, residential and multi-family land, strategically located on the south side of Highway 1 in the vibrant City of Brooks. Boasting Direct Control (DC) zoning, this property offers unparalleled flexibility, allowing for a wide variety of residential and commercial uses with a new Southeast Area Structure Plan now in place within the City of Brooks. Whether you envision a thriving mixed use community, commercial hub, or diverse residential development, these parcels are poised to accommodate your vision.Ideally situated near key amenities, including the Francophone School École Le Ruisseau, Medicine Hat College (Brooks Campus), and the established Meadowbrook residential neighborhood, this property is primed for growth. With its close proximity to Highway 1, it offers excellent visibility and accessibility, making it an attractive option for developers and investors.The surrounding area is experiencing new growth, presenting a strong market for both residential and commercial developments. Residential opportunities include single family homes, multi-family complexes, or a combination of both to cater to the needs of this thriving community. Additionally, the potential for commercial development ensures the creation of a well rounded and sustainable space.City of Brooks sewer lines run through this parcel.Explore the flexibility of Direct Control zoning and review the land-use bylaw and Southeast Area Structure Plan available in the supplement section of the listing for more details. Don’t miss out on this rare chance to shape the future of Brooks in a prime and expanding location! (id:32467)

Property Features

Building

  • Fireplace: No
  • Utility Water: None

Features

  • Feature: See remarks, Other

Land

  • Land Size: 70.85 ac|50 - 79 acres
  • Sewer: No sewage system

Ownership

  • Type: Freehold

Zoning

  • Description: DC

Information entered by Royal LePage Community Realty
Listing information last updated on: 2026-05-14 13:13:45


Book your free home evaluation with a 1% REALTOR® now!


How much could you save in commission selling with One Percent Realty?

Slide to select your home's price:

$500,000

Your One Percent Realty Commission savings

$500,000

Savings calculated using One Percent Realty's posted commission rates compared to another agent charging 7% on the first 100k & 3% on the balance + GST. Not all agents charge the same.

One Percent Realty's top FAQs

Q
What is the deal exactly, with One Percent Realty?

We are a fully licensed real estate company that offers full service but at a discount commission. In terms of services and exposure, we are identical to whoever you would like to compare us with. We are on MLS®, all the top internet real estates sites, we place a sign on your property ( if it's allowed ), we show the property, hold open houses, advertise it, handle all the negotiations, plus the conveyancing. There is nothing that you are not getting, except for a high commission!

Q
What do you charge?

We charge a total of $7,950 for residential properties under $400,000. For residential properties $400,000-$900,000 we charge $9,950. For residential properties over $900,000 we charge 1% of the sale price plus $950. Plus Applicable taxes, of course. We also offer the flexibility to offer more commission to the buyer's agent, if you want to. It is as simple as that! For commercial properties, farms, or development properties please contact a One Percent agent directly or fill out the market evaluation form on the bottom right of our website pages and a One Percent agent will get back to you to discuss the particulars.

Q
Are your listings on MLS® and realtor.ca?

Yes, and yes.


Learn more about the One Percent Realty Deal