4917 47 St, Camrose

2026-01-07
 

Quick Summary

Location
4917 47 St, Camrose, Alberta T4V1J9
Status:
For sale or rent
Property Type:
Retail
Area:
6000 sqft
Garages:
16
Year of Construction:
1910
Brochure Link:

MLS®#44106257

Property Description

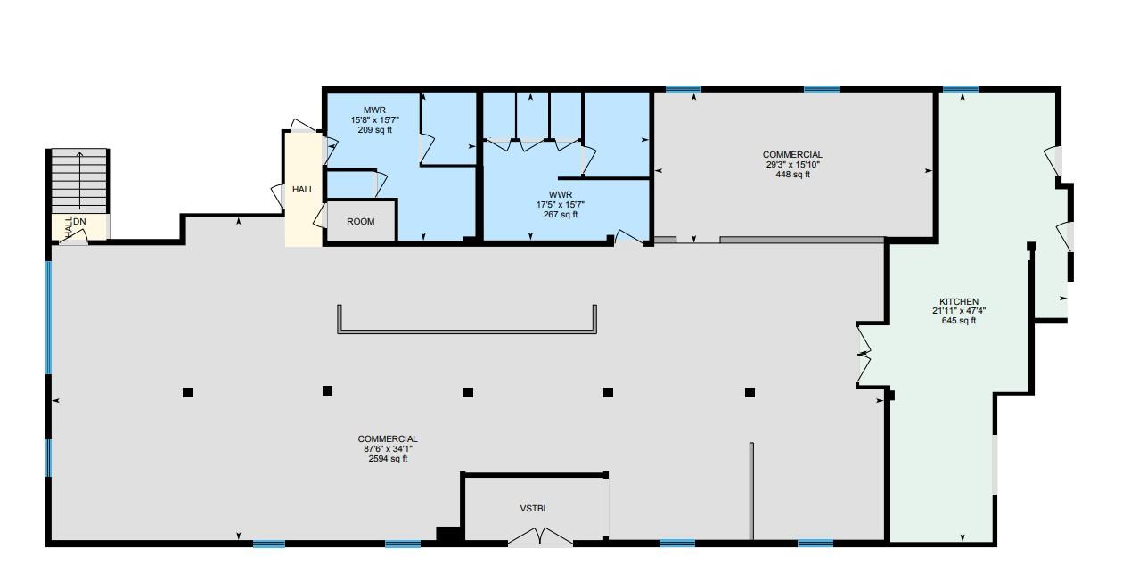
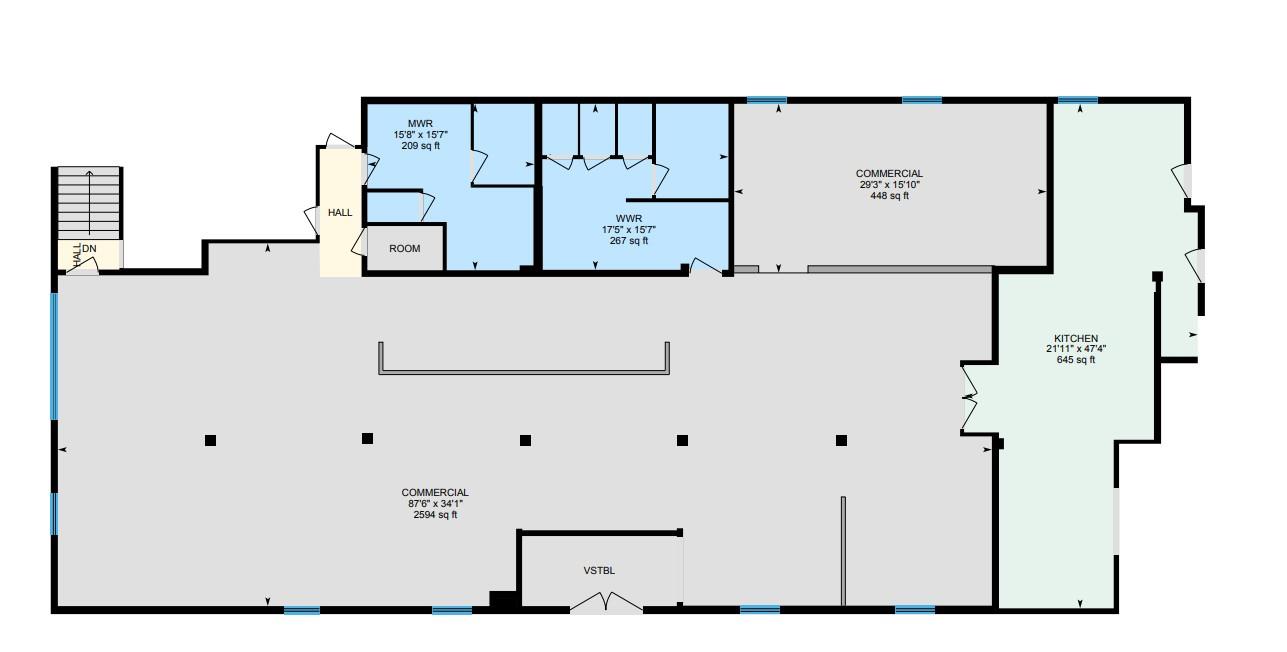
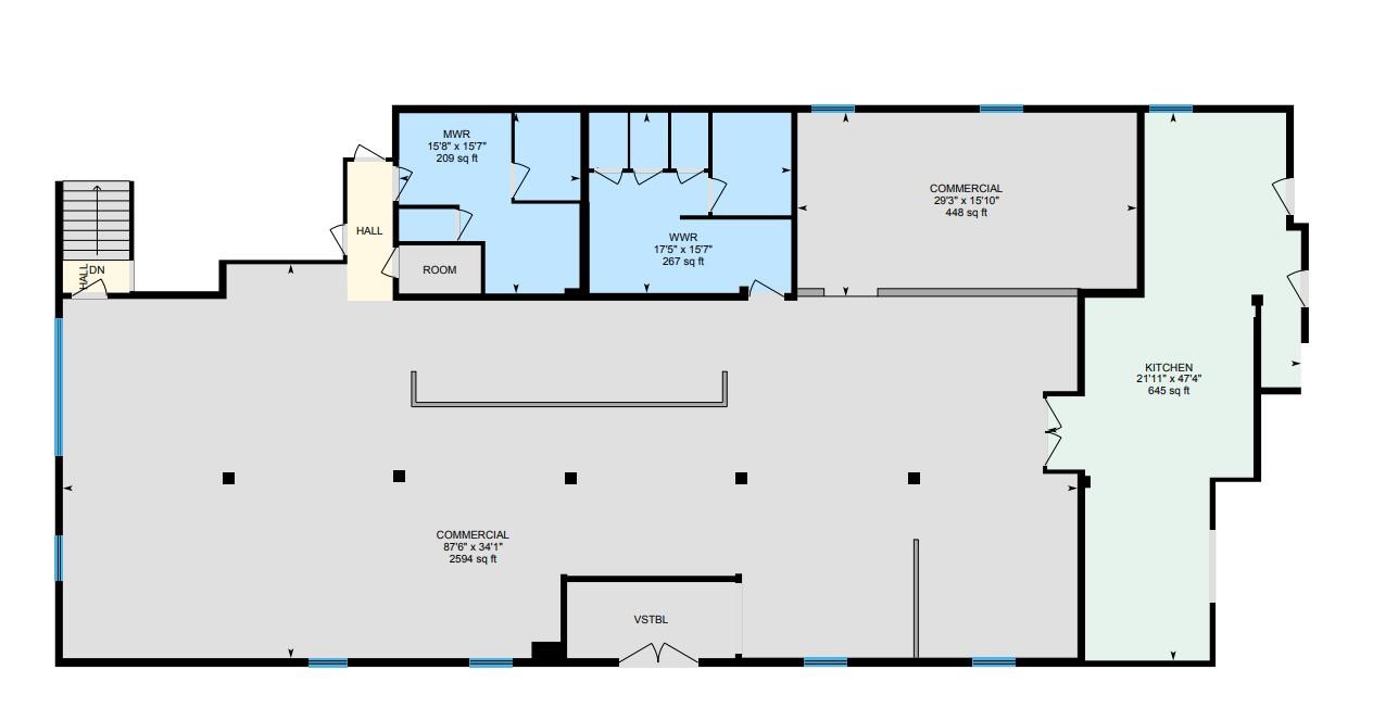
Prime Value-Add Commercial Opportunity $5 Per SQ Ft up to 6000 sq ft– Camrose, Alberta. View the 360 IGUIDE Virtual Tour.An exceptional value-add commercial location 800 Volt Electrical Service, located in the heart of Camrose, Alberta, featuring a well-maintained Two-storey building anchored by The Marrow Restaurant & Lounge, a highly regarded upscale dining establishment and strong destination tenant.Start your new business with a choice of the additional two floors, consisting of approximately 6,000 square feet across the second floor and basement. These levels are well suited for a variety of uses (office, professional services, retail, or complementary hospitality concepts), Lots of power on site for Data Centers 800 AMP & 600 Volt.Highlights:Two-storey commercial building with Full Basement Ceiling Height 94Anchor tenant: The Marrow Restaurant & Lounge (upscale, well-established)Significant value-add and growth potential, Prime Camrose location. (id:32467)

Property Features

Building

  • Fireplace: No
  • Interior Size: 6000 sqft

Land

  • Land Size: 12445.1878 sqft|under 1/2 acre

Information entered by Coldwell Banker Mountain Central
Listing information last updated on: 2026-04-03 13:19:39


Book your free home evaluation with a 1% REALTOR® now!


How much could you save in commission selling with One Percent Realty?

Slide to select your home's price:

$500,000

Your One Percent Realty Commission savings

$500,000

Savings calculated using One Percent Realty's posted commission rates compared to another agent charging 7% on the first 100k & 3% on the balance + GST. Not all agents charge the same.

Send a Message


One Percent Realty's top FAQs

Q
What is the deal exactly, with One Percent Realty?

We are a fully licensed real estate company that offers full service but at a discount commission. In terms of services and exposure, we are identical to whoever you would like to compare us with. We are on MLS®, all the top internet real estates sites, we place a sign on your property ( if it's allowed ), we show the property, hold open houses, advertise it, handle all the negotiations, plus the conveyancing. There is nothing that you are not getting, except for a high commission!

Q
What do you charge?

We charge a total of $7,950 for residential properties under $400,000. For residential properties $400,000-$900,000 we charge $9,950. For residential properties over $900,000 we charge 1% of the sale price plus $950. Plus Applicable taxes, of course. We also offer the flexibility to offer more commission to the buyer's agent, if you want to. It is as simple as that! For commercial properties, farms, or development properties please contact a One Percent agent directly or fill out the market evaluation form on the bottom right of our website pages and a One Percent agent will get back to you to discuss the particulars.

Q
Are your listings on MLS® and realtor.ca?

Yes, and yes.


Learn more about the One Percent Realty Deal

 

Bhavya Soni Associate

Phone:
7807070479
Email:
Opendreamdoorswithbhavya@gmail.com
Support Area:
Edmonton, Beaumont, Fort Saskatchewan, Spruce Grove, Stony Plain, Sherwood Park, St Albert, Millet, Wetaskiwin, Calmar, Devon, Morinville, Westlock County, Red Deer, Rimbey, Athabasca, Leduc, Falun, Ponoka, Lacombe, Camrose, Thorby, Drayton Valley

Bhavya Soni is one of the top performing full-time agents of One Percent Realty. Her name has been p ...

Full Profile