9159 25 Avenue, Edmonton

2025-12-22
 

Quick Summary

Location
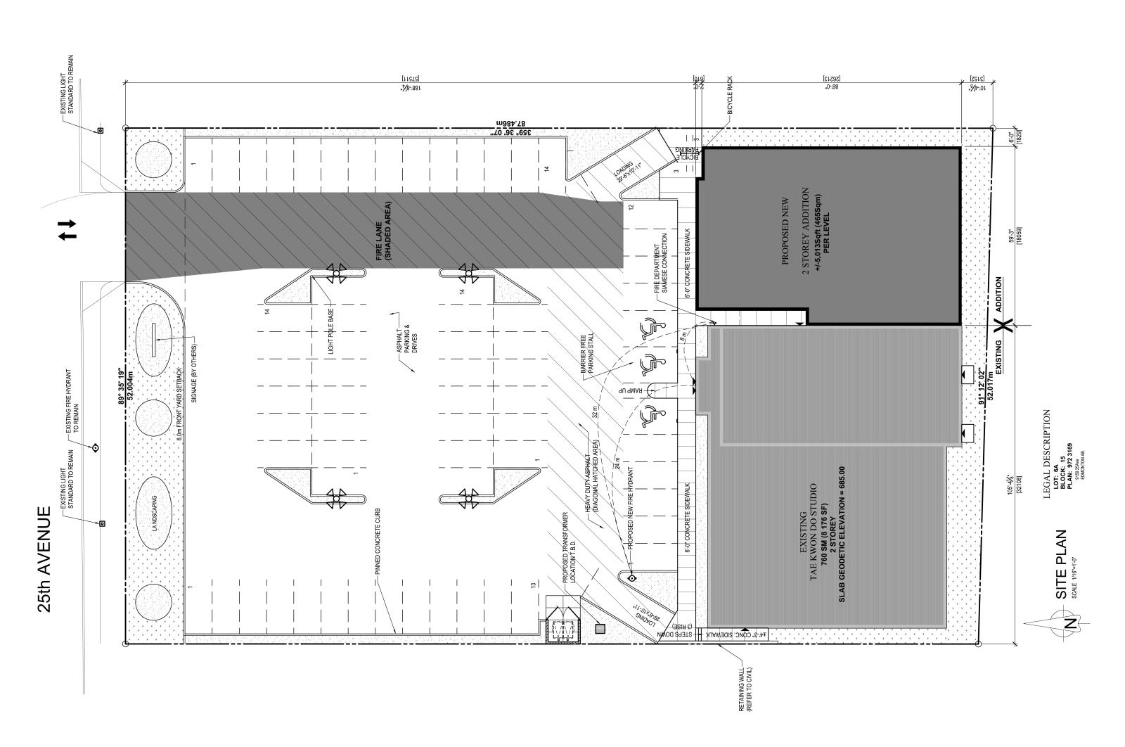
9159 25 Avenue, Edmonton, Alberta T6N0A5
Status:
For sale or rent
Property Type:
Vacant Land
Area:
107639 sqft
Year of Construction:
2014
Brochure Link:

MLS®#43690891

Property Description

Prime Commercial Lease Opportunity Across from Costco! Located in a high-traffic area with excellent exposure and large shared parking, this site offers 3,000 to 10,000 sq ft of customizable space—perfectly suited to your vision. Zoned BE, it supports a wide range of light industrial and small commercial uses. Whether you're expanding or launching something new, we’re ready to build to suit your specific business needs. Bring your ideas and let's create the ideal space for your next chapter. Take the first step toward your business growth!Other Property Types: Commercial Land,Office,Retail,InstitutionalSubject Space Width: 18Subject Space Depth: 26Ownership Interest: PrivateSite Services: Electricity,Fully Serviced,Street Lighting,City WaterSeller Rights: NoAppointment Name: Derek Keetrealtor@dkeet.caAppointment Phone: 587-803-0396Lease Operating Costs Included: Taxes, maintenance, snow removal, All except utilitiesParagon Listing ID: E4445611 (id:32467)

Property Features

Building

  • Fireplace: No
  • Interior Size: 107639 sqft

Land

  • Land Size: 4356 sqft|under 1/2 acre

Information entered by One Percent Realty
Listing information last updated on: 2025-12-22 16:44:18

Send a Message


One Percent Realty's top FAQs

Q
What is the deal exactly, with One Percent Realty?

We are a fully licensed real estate company that offers full service but at a discount commission. In terms of services and exposure, we are identical to whoever you would like to compare us with. We are on MLS®, all the top internet real estates sites, we place a sign on your property ( if it's allowed ), we show the property, hold open houses, advertise it, handle all the negotiations, plus the conveyancing. There is nothing that you are not getting, except for a high commission!

Q
What do you charge?

We charge a total of $7,950 for residential properties under $400,000. For residential properties $400,000-$900,000 we charge $9,950. For residential properties over $900,000 we charge 1% of the sale price plus $950. Plus Applicable taxes, of course. We also offer the flexibility to offer more commission to the buyer's agent, if you want to. It is as simple as that! For commercial properties, farms, or development properties please contact a One Percent agent directly or fill out the market evaluation form on the bottom right of our website pages and a One Percent agent will get back to you to discuss the particulars.

Q
Are your listings on MLS® and realtor.ca?

Yes, and yes.


Learn more about the One Percent Realty Deal

 

Derek Keet - Edmonton REALTOR® Associate

Phone:
587-803-0396
Email:
realtor@dkeet.ca
Support Area:
Edmonton, Sherwood Park, Beaumont, Leduc, Surrounding Areas

Billions SOLD. Millions SAVED!*Across Canada One Percent Realty sold over 1 Billion in Real estate l ...

Full Profile