438 Crystal Creek LI, Leduc

2025-12-15
 

Quick Summary

Location
438 Crystal Creek LI, Leduc, Alberta T9E0X5
Price
$440,000 CAD
Status:
For Sale
Property Type:
Single Family
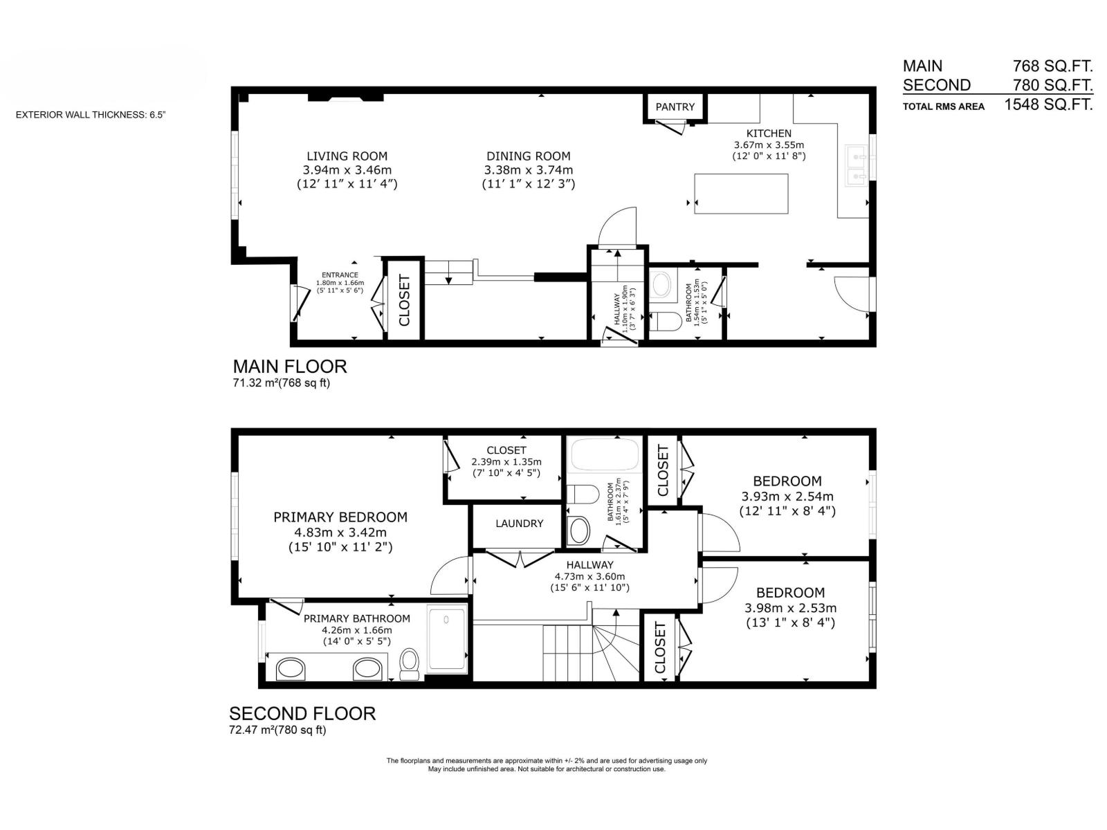
Area:
1548 sqft
Bedrooms:
3
Bathrooms:
3
Year of Construction:
2025
Video Link:

MLS®#E4468187

Property Description

Welcome to this brand new 3-bedroom, 2.5-bathroom home in Leduc’s newest community. The main floor offers luxury vinyl plank flooring, a bright living room with an electric fireplace, and a modern kitchen with quartz countertops, a large island, ample cabinetry, and a spacious pantry. A dining nook and 2 piece bathroom complete this level. Upstairs, you’ll find soaring ceilings and three well-sized bedrooms, including the primary suite with a walk-in closet and an ensuite featuring double sinks and an oversized shower. A 4 piece bathroom and convenient upper-floor laundry complete the second level. Additional features include upgraded lighting, quartz countertops throughout, and a double detached garage. This home is close to schools, walking paths, shopping, and other nearby amenities. Some photos may be virtually staged. (id:32467)

Property Features

Ammenities Near By

  • Ammenities Near By: Airport, Golf Course, Schools, Shopping

Building

  • Appliances: See remarks
  • Basement Development: Unfinished
  • Basement Type: Full (Unfinished)
  • Construction Style: Detached
  • Fireplace: Yes
  • Interior Size: 1548 sqft
  • Building Type: House
  • Stories: 2

Features

  • Feature: See remarks, No Animal Home, No Smoking Home

Ownership

  • Type: Freehold

Information entered by RE/MAX Elite
Listing information last updated on: 2025-12-16 02:21:06


Book your free home evaluation with a 1% REALTOR® now!


How much could you save in commission selling with One Percent Realty?

Slide to select your home's price:

$500,000

Your One Percent Realty Commission savings

$500,000

Savings calculated using One Percent Realty's posted commission rates compared to another agent charging 7% on the first 100k & 3% on the balance + GST. Not all agents charge the same.

Send a Message


One Percent Realty's top FAQs

Q
What is the deal exactly, with One Percent Realty?

We are a fully licensed real estate company that offers full service but at a discount commission. In terms of services and exposure, we are identical to whoever you would like to compare us with. We are on MLS®, all the top internet real estates sites, we place a sign on your property ( if it's allowed ), we show the property, hold open houses, advertise it, handle all the negotiations, plus the conveyancing. There is nothing that you are not getting, except for a high commission!

Q
What do you charge?

We charge a total of $7,950 for residential properties under $400,000. For residential properties $400,000-$900,000 we charge $9,950. For residential properties over $900,000 we charge 1% of the sale price plus $950. Plus Applicable taxes, of course. We also offer the flexibility to offer more commission to the buyer's agent, if you want to. It is as simple as that! For commercial properties, farms, or development properties please contact a One Percent agent directly or fill out the market evaluation form on the bottom right of our website pages and a One Percent agent will get back to you to discuss the particulars.

Q
Are your listings on MLS® and realtor.ca?

Yes, and yes.


Learn more about the One Percent Realty Deal

 

Bhavya Soni Associate

Phone:
7807070479
Email:
Opendreamdoorswithbhavya@gmail.com
Support Area:
Edmonton, Beaumont, Fort Saskatchewan, Spruce Grove, Stony Plain, Sherwood Park, St Albert, Millet, Wetaskiwin, Calmar, Devon, Morinville, Westlock County, Red Deer, Rimbey, Athabasca, Leduc, Falun, Ponoka, Lacombe, Camrose, Thorby, Drayton Valley

Bhavya Soni is one of the top performing full-time agent of One Percent Realty. Her name has been pu ...

Full Profile

 

Janelle Duan Associate

Phone:
7809038498
Email:
lovethishouse88@gmail.com
Support Area:
Edmonton, Beaumont, Fort Saskatchewan, Sherwood Park, St.Albert, Tofield, Leduc, Ardrossan, Strathcona county, Tofield AB

I pursued a career in real estate because I have a genuine passion for connecting with people and po ...

Full Profile

 

Derek Keet - Edmonton REALTOR® Associate

Phone:
587-803-0396
Email:
realtor@dkeet.ca
Support Area:
Edmonton, Sherwood Park, Beaumont, Leduc, Surrounding Areas

Billions SOLD. Millions SAVED!*Across Canada One Percent Realty sold over 1 Billion in Real estate l ...

Full Profile